Подсамолетные бункерные системы EAPIT люкового типа (hatch type)

Есть в наличии

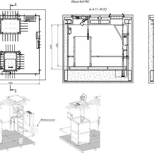
Подсамолетная бункерная система (ПБС) серии EAPIT люкового типа (hatch type) предназначена для обеспечения подачи электропитания бортовой сети самолётов и вертолётов 3-х фазным переменным током с частотой 400 Гц и/или постоянным напряжением 28,5 В, при их наземном техническом обслуживании и предполётной подготовке.



Запрос ТКП

Узнать больше
Гарантия 12 лет
Инструкции по установке включены
100% российские материалы!
Выход переменного напряжения 220/380В 50Ц
до 250кВА
Выход переменного напряжения 200В 400Гц
2 разъема 90 кВА
Вода
да
Сжатый воздух
да
Кондиционирование и проветривание
да
ПБС имеют два типа исполнения:
  • - исполнение "закладной рамы" для плит перекрытий;
  • - исполнение "в сборе" с интегрированной металлической шахтой.
На подъемном люке ПБС может быть установлена распределительная коробка с набором розеток, который может варьироваться в зависимости от требования заказчика, и держатели авиационных разъемом типа ШРАП.
При необходимости в систему могут быть включены устройства подачи сжатого воздуха, ГСМ, а также кондиционирования, водоснабжения и туалет-сервиса.
Наиболее оптимальное исполнение ПБС системы EAPIT включает в себя металлическую шахту, в которой размещаются необходимы распределительные щиты для приема и распределения переменного напряжения 380В 50Гц и 200В 400Гц.
В данной комплектации строительно-монтажные работы сводятся к минимальному объему.
Пот требованию заказчика люковая система может иметь исполнение с подвижной монтажной панелью оперативных подключений, что обеспечивает возможность работы на подключенные коммуникационные разъемы в закрытом положении крышки люка.ма может иметь исполнение с подвижной монтажной панелью оперативных подключений, что обеспечивает возможность работы на подключенные коммуникационные разъемы в закрытом положении крышки люка.
Аналогичная система "подъемного типа"




Позвонить (812) 6436610